MV MiniVilla DUO Hoog – Een Circulair en Passief Huis met Oneindige Mogelijkheden

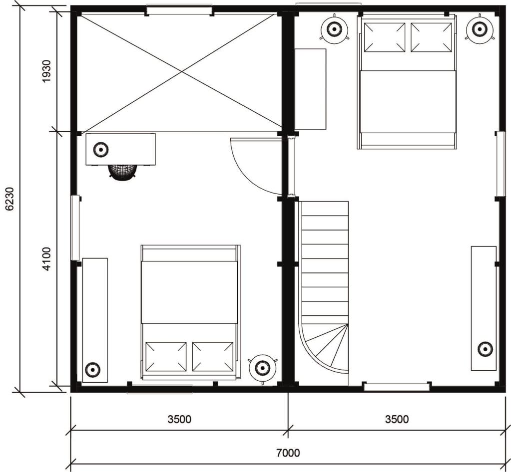
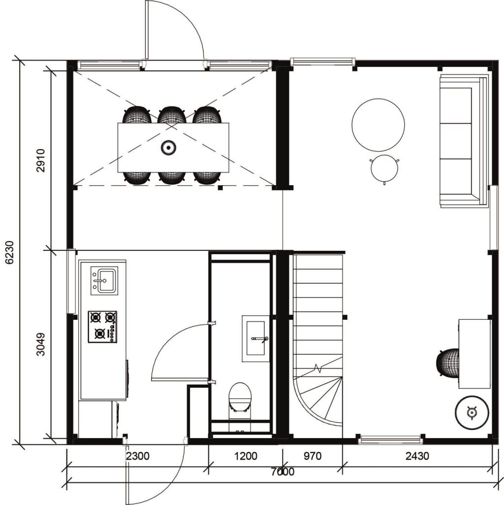
De MV MiniVilla DUO Hoog is een compacte woning volgens het Bouwbesluit, speciaal ontworpen voor een jong gezin met 1 tot 2 kinderen. Het ontwerp is niet alleen flexibel, maar biedt ook de mogelijkheid om zowel een moderne uitstraling als een traditionele stijl te creëren.

Dankzij de vrijheid in afbouw kunt u uw woning volledig aanpassen aan uw persoonlijke smaak. Wilt u een strak en eigentijds interieur? Of droomt u van een romantisch gipsversierd plafond en een authentieke houten deur uit de 18e eeuw? Het kan allemaal met de MV MiniVilla DUO Hoog!

Deze innovatieve woning wordt in de fabriek gerealiseerd en is een volledig circulair passief huis. Dit betekent dat het energiezuinig is, gemaakt van recyclebare materialen, en volledig demonteerbaar – een toekomstgerichte keuze voor duurzame en bewuste bewoners.

De vide in het ontwerp zorgt voor een gevoel van ruimtelijkheid en licht, waardoor de woning veel groter aanvoelt dan het compacte formaat doet vermoeden.

Met de MV MiniVilla DUO Hoog kiest u voor een duurzaam, stijlvol én flexibel huis dat perfect aansluit bij uw wensen en levensstijl. Laat uw creativiteit de vrije loop en maak uw droomwoning werkelijkheid!


Contact

MV MiniVilla

www.minivilla.nl

E: info@minivilla.nl

M: 06530192621

Instagram

Facebook

Wil je koekjes toestaan?